Skip To Content

6796 E 149th Drive

Thornton, CO 80602
  • $638,350
  • STATUS: Pending
  • ON SITE: 64 Days
  • ID#: 4921625
Under Contract
UPDATED: 42 min ago
$638,350
  • 4
    BEDS
  • 0.07
    ACRES
  • 3
    BATHS
  • 1
    1/2 BATHS
  • 2,235
    SQFT
  • $286
    $/SQFT
Neighborhood:
Type:
Single-Family Home
Built:
2024
County:
Area:

School Information

Elementary School:
Middle School:
High School:
School District:
REcolorado logo Offered by Coldwell Banker Realty 56.

Description

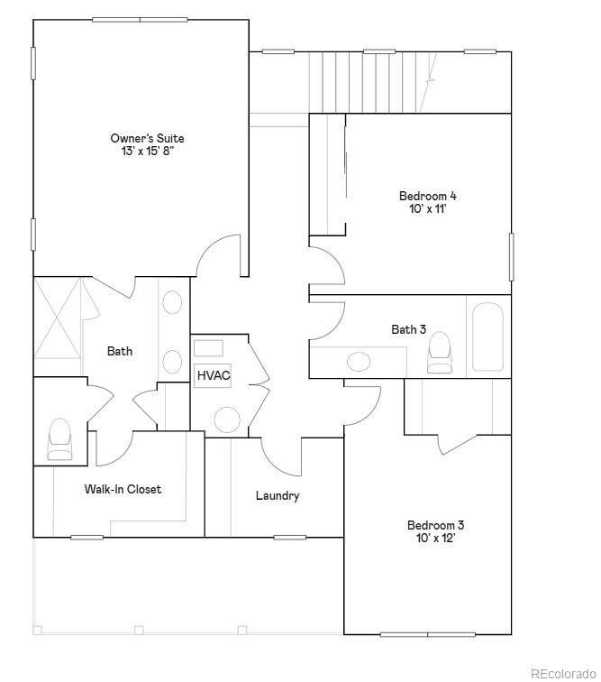
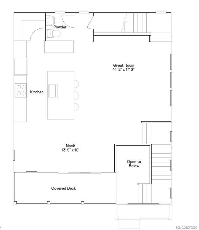
**Eligible for 3.75 FHA 5/1 ARM or 3.99% fixed rate on eligible clearance homes when using builder's preferred lender terms and conditions apply ask for details***Welcome to the Skyline Collectionwhere thoughtful design meets modern living. This three-level home begins with a private secondary bedroom suite on the first floor, ideal for overnight guests or household members who value their own space. On the second level, you'll find a spacious Great Room, a contemporary kitchen, and a cozy nook, all arranged in an open-concept layout that encourages connection and comfort. Sliding glass doors lead to a covered deck, offering a flexible space for entertaining or relaxing. The top floor features three bedrooms, including a luxurious owner's suite complete with a peaceful bedroom, an en-suite bathroom, and a walk-in closet. The laundry room is conveniently located near the bedrooms for added ease. Located near Denver Premium Outlets, residents enjoy access to upscale shopping and dining, while Trail Winds Recreation Center provides a wide range of activities for all ages. This home is move-in ready and waiting for you to make it your own. Estimated completion is October 2025.

Monthly Payment Calculator



Based on information submitted to the MLS GRID as of 2025-11-08T18:22:59.047 (date and time MLS Grid Data was obtained). All data is obtained from various sources and may not have been verified by broker or MLS GRID. Supplied Open House information is subject to change without notice. All information should be independently reviewed and verified for accuracy. Properties may or may not be listed by the office/agent presenting the information.

REcolorado logo © 2025 METROLIST, INC., DBA RECOLORADO® – All Rights Reserved 6455 S. Yosemite St., Suite 500 Greenwood Village, CO 80111 USA

www.yourdenverhomesource.com/homes/167625772
Print Image

6796 E 149th Drive Thornton, CO 80602

  • Price: $638,350
  • Status: Pending
  • On Site: 64 Days
  • Updated: 42 min ago
  • ID#: 4921625
4
Beds
3
Baths
1
½ Baths
0.07
Acres
2,235
SQFT
$286
$/SQFT
2024
Built
Neighborhood:
Parterre
County:
Adams
Area:
Thornton
Elementary School:
West Ridge
Middle School:
Roger Quist
High School:
Riverdale Ridge
School District:
School District 27-J
Property Description
**Eligible for 3.75 FHA 5/1 ARM or 3.99% fixed rate on eligible clearance homes when using builder's preferred lender terms and conditions apply ask for details***Welcome to the Skyline Collectionwhere thoughtful design meets modern living. This three-level home begins with a private secondary bedroom suite on the first floor, ideal for overnight guests or household members who value their own space. On the second level, you'll find a spacious Great Room, a contemporary kitchen, and a cozy nook, all arranged in an open-concept layout that encourages connection and comfort. Sliding glass doors lead to a covered deck, offering a flexible space for entertaining or relaxing. The top floor features three bedrooms, including a luxurious owner's suite complete with a peaceful bedroom, an en-suite bathroom, and a walk-in closet. The laundry room is conveniently located near the bedrooms for added ease. Located near Denver Premium Outlets, residents enjoy access to upscale shopping and dining, while Trail Winds Recreation Center provides a wide range of activities for all ages. This home is move-in ready and waiting for you to make it your own. Estimated completion is October 2025.
Exterior Features

Architectural Style Contemporary Attached Garage YN Yes Carport Spaces 0 Construction Materials FrameOtherStone Exterior Features Balcony Lot Size Area 2852 Offstreet Spaces 0 Parking Total 2 Patio And Porch Features Front PorchWrap Around Roof Composition Rv Spaces 0 Structure Type House

Interior Features

Above Grade Finished Area 2235 Appliances DishwasherDisposalMicrowaveOvenRefrigerator Basement Crawl Space Basement YN No Cooling Central Air Flooring CarpetVinyl Heating Forced Air Interior Features Eat-in KitchenEntrance FoyerKitchen IslandOpen FloorplanPrimary SuiteQuartz CountersWalk-In Closet(s) Levels Tri-Level Main Level Bathrooms 1 Main Level Bedrooms 0 Rooms Bedroom (Lower Level) Bathroom Full (Lower Level) Kitchen (Main Level) Dining Room (Main Level) Great Room (Main Level) Laundry (Upper Level) Primary Bedroom (Upper Level) Primary Bathroom Three Quarter (Upper Level) Bathroom Full (Upper Level) Bedroom (Upper Level) Bedroom (Upper Level) Bathroom Half (Main Level) Rooms Total 12 Window Features Double Pane Windows

Property Features

Association Fee 145 Association Fee Annual 1740.00 Association Fee Frequency Monthly Association Fee Includes RecyclingTrash Association Fee Total Annual 1740.00 Association Fee2 Annual 0.00 Association Fee3 Annual 0.00 Association YN Yes Builder Name Lennar Building Area Source Builder Comparable Listing YN No Contingency None Known Exclusions None Green Verification Count 0 Home Warranty YN Yes Listing Terms CashConventionalFHAVA Loan Living Area Sq Ft 2235 Multiple Associations YN No Ownership Builder Property Attached YN No Property Condition New Construction Property Sub Type Single Family Residence Restrictions Covenants Other Restrictions Covenants YN Yes Security Features Carbon Monoxide Detector(s)Smoke Detector(s) Senior Community YN No Sewer Public Sewer Special Listing Conditions None Tax Annual Amount 6766 Tax Legal Description PARTERRE SUBD AMND 1 FLG 3 BLK 5 LOT 21 Tax Year 2024 Water Included YN Yes Water Source Public

REcolorado logo Listing courtesy of Coldwell Banker Realty 56:kris@thecerettogroup.com,720-939-0558. MLS #4921625


Based on information submitted to the MLS GRID as of 2025-11-08T18:22:59.047 (date and time MLS Grid Data was obtained). All data is obtained from various sources and may not have been verified by broker or MLS GRID. Supplied Open House information is subject to change without notice. All information should be independently reviewed and verified for accuracy. Properties may or may not be listed by the office/agent presenting the information.

REcolorado logo © 2025 METROLIST, INC., DBA RECOLORADO® – All Rights Reserved 6455 S. Yosemite St., Suite 500 Greenwood Village, CO 80111 USA

 
https://bt-photos.global.ssl.fastly.net/metrolist/orig_boomver_1_4921625-1.jpg https://bt-photos.global.ssl.fastly.net/metrolist/orig_boomver_1_4921625-1.jpg https://bt-photos.global.ssl.fastly.net/metrolist/orig_boomver_1_4921625-1.jpg
Logo
The Griffith Home Team | Re/Max Professionals
10111 Inverness Main St., Suite P
Englewood CO, 80112
REcolorado logo Offered by Coldwell Banker Realty 56.