Skip To Content

3901 Alcott Street

Denver, CO 80211
  • $575,000
  • STATUS: Pending
  • ON SITE: 58 Days
  • ID#: 9708004
Under Contract
UPDATED: 138 min ago
$575,000
  • 4
    BEDS
  • 0.21
    ACRES
  • 1
    BATHS
  • 0
    1/2 BATHS
  • 1,869
    SQFT
  • $308
    $/SQFT
Neighborhood:
Type:
Single-Family Home
Built:
1885
County:
Area:

School Information

Elementary School:
Middle School:
High School:
School District:
REcolorado logo Offered by Strategic Real Estate and Development Services.

Description

A rare opportunity in Sunnyside! This 1885 farmhouse-style home sits on a generous 9,360 sq ft lot and offers 4 bedrooms, a detached 2-car garage, and incredible potential for transformation. In need of major renovation, this property is ready for someone with vision whether you're an investor, builder, or homeowner looking for a project. The home's solid footprint and premier location just blocks from dining, coffee shops, and parks make it a fantastic long-term investment. Priced to reflect the updates needed bring your creativity and make this classic Denver home shine again!

Monthly Payment Calculator



Based on information submitted to the MLS GRID as of 2025-11-08T00:24:34.447 (date and time MLS Grid Data was obtained). All data is obtained from various sources and may not have been verified by broker or MLS GRID. Supplied Open House information is subject to change without notice. All information should be independently reviewed and verified for accuracy. Properties may or may not be listed by the office/agent presenting the information.

REcolorado logo © 2025 METROLIST, INC., DBA RECOLORADO® – All Rights Reserved 6455 S. Yosemite St., Suite 500 Greenwood Village, CO 80111 USA

www.yourdenverhomesource.com/homes/167783534
Print Image

3901 Alcott Street Denver, CO 80211

  • Price: $575,000
  • Status: Pending
  • On Site: 58 Days
  • Updated: 138 min ago
  • ID#: 9708004
4
Beds
1
Baths
0
½ Baths
0.21
Acres
1,869
SQFT
$308
$/SQFT
1885
Built
Neighborhood:
Perrins
County:
Denver
Area:
Denver
Elementary School:
Columbian
Middle School:
Skinner
High School:
North
School District:
Denver 1
Property Description
A rare opportunity in Sunnyside! This 1885 farmhouse-style home sits on a generous 9,360 sq ft lot and offers 4 bedrooms, a detached 2-car garage, and incredible potential for transformation. In need of major renovation, this property is ready for someone with vision whether you're an investor, builder, or homeowner looking for a project. The home's solid footprint and premier location just blocks from dining, coffee shops, and parks make it a fantastic long-term investment. Priced to reflect the updates needed bring your creativity and make this classic Denver home shine again!
Exterior Features

Architectural Style Traditional Attached Garage YN No Carport Spaces 0 Construction Materials Frame Fencing Full Lot Features Level Lot Size Area 9360 Offstreet Spaces 0 Parking Total 2 Roof Unknown Rv Spaces 0 Structure Type House

Interior Features

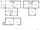
Above Grade Finished Area 1439 Basement Partial Basement YN Yes Below Grade Finished Area 144 Cooling None Flooring CarpetLaminate Heating Forced Air Levels Two Main Level Bathrooms 1 Main Level Bedrooms 1 Rooms Living Room (Main Level) Kitchen (Main Level) Bathroom Full (Main Level) Bedroom (Main Level) Bedroom (Upper Level) Bedroom (Upper Level) Bedroom (Upper Level) Rooms Total 7

Property Features

Association Fee Annual 0.00 Association Fee Total Annual 0.00 Association Fee2 Annual 0.00 Association Fee3 Annual 0.00 Association YN No Building Area Source Public Records Comparable Listing YN No Contingency None Known Exclusions None Green Verification Count 0 Listing Terms CashConventional Living Area Sq Ft 1583 Ownership Individual Possession Immediate Property Attached YN No Property Condition Fixer Property Sub Type Single Family Residence Restrictions Covenants YN No Senior Community YN No Sewer Public Sewer Special Listing Conditions None Tax Annual Amount 3970 Tax Legal Description E 75 FT OF S 125 FT OF L 4 BLK 23 PERRINS SUB Tax Year 2024 Water Included YN Yes Water Source Public Zoning U-SU-C1

REcolorado logo Listing courtesy of Strategic Real Estate and Development Services:andrew@andrewjwolfe.com,720-744-2513. MLS #9708004


Based on information submitted to the MLS GRID as of 2025-11-08T00:24:34.447 (date and time MLS Grid Data was obtained). All data is obtained from various sources and may not have been verified by broker or MLS GRID. Supplied Open House information is subject to change without notice. All information should be independently reviewed and verified for accuracy. Properties may or may not be listed by the office/agent presenting the information.

REcolorado logo © 2025 METROLIST, INC., DBA RECOLORADO® – All Rights Reserved 6455 S. Yosemite St., Suite 500 Greenwood Village, CO 80111 USA

 
https://bt-photos.global.ssl.fastly.net/metrolist/1280_boomver_1_9708004-1.jpg https://bt-photos.global.ssl.fastly.net/metrolist/1280_boomver_1_9708004-1.jpg https://bt-photos.global.ssl.fastly.net/metrolist/1280_boomver_1_9708004-1.jpg
Logo
The Griffith Home Team | Re/Max Professionals
10111 Inverness Main St., Suite P
Englewood CO, 80112
REcolorado logo Offered by Strategic Real Estate and Development Services.